Описание квартиры в "ЖК Кватро"
Продается 2-комнатная квартира в новом жилом комплексе "ЖК Кватро" 🏢.
Квартира расположена на 2-м этаже 13-этажного дома.
Отличный вариант для инвестиций.
Удобная планировка
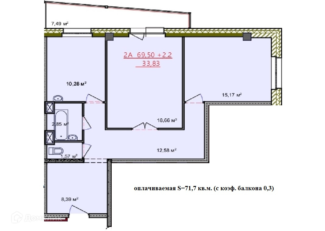
- ✅ Общая площадь: 71.7 м².
- ✅ Просторная жилая площадь: - м².
- ✅ Кухня: - м² — эргономичное пространство.
Преимущества квартиры
- 🔧 Вариант отделки: предварительная отделка. Это позволит вам сразу приступить к ремонту.
- 🌞 Панорамное остекление наполняют помещения естественным светом.
- 🌿 Класс жилья: Комфорт — благоустроенная территория.
Финансы и ипотека
- 💳 Ипотека от 47 500 руб/мес.
- 🏦 Подходит под семейную и IT ипотеку.
- 🤝 Эскроу-счета гарантирует спокойствие.
Чтобы узнать подробности и зафиксировать цену — свяжитесь с нами прямо сейчас! 📞
Характеристики новостройки в ЖК Кватро
- Номер квартиры: 9
- Вариант отделки: предварительная отделка
- Общая площадь: 71.7 м²
- Жилая площадь: - м²
- Площадь кухни: - м²
- Класс жилья: Комфорт
- Количество комнат: 2-комнатная квартира
- Этаж: 2
- Этажность дома: 13
Полезная информация о ЖК Кватро